Experience
Project Info:
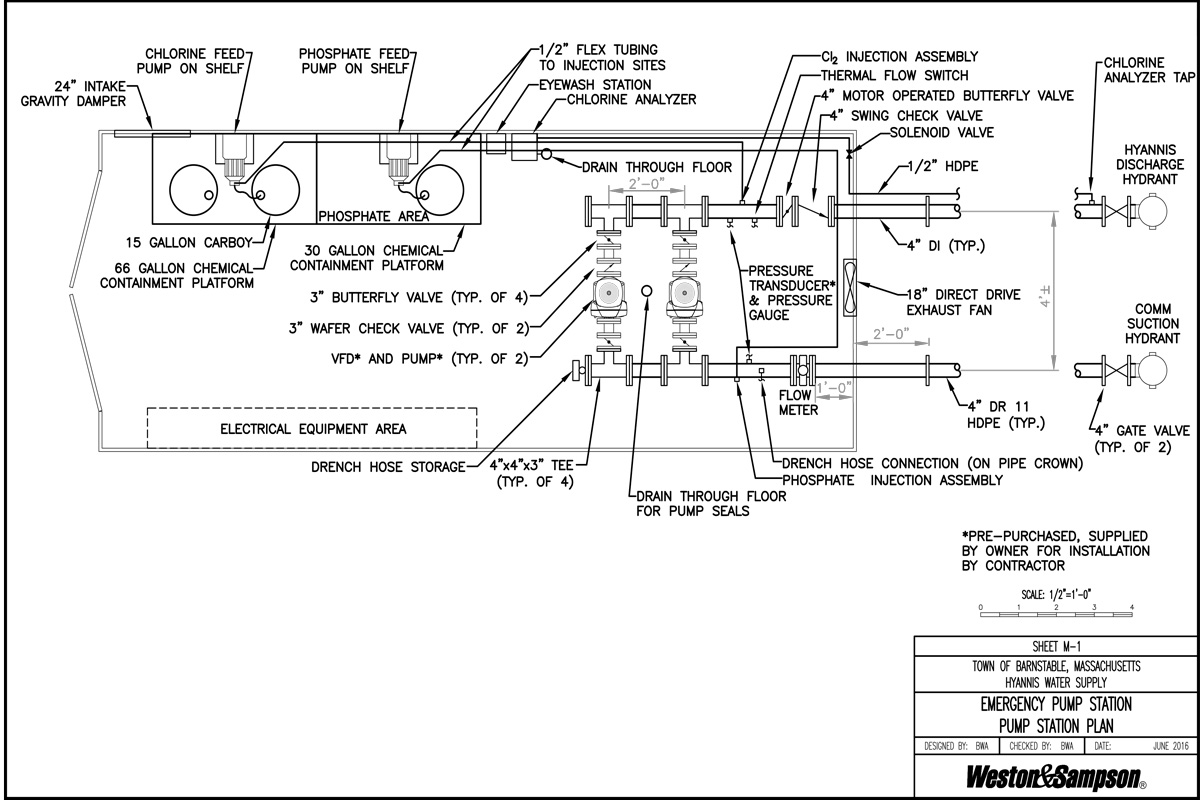
Owner:
Town of Barnstable, MA
Technologies/Materials:
Portable self-contained water pump station in a Conex box
Engineer:
Weston & Sampson
Project Value:
$188,874.00
Project Highlights:
The pump station provides an interconnection with the C.O.M.M. Water System to supply clean water to Hyannis during water emergencies.
Owner:
Town of Barnstable, MA
Technologies/Materials:
Portable self-contained water pump station in a Conex box
Engineer:
Weston & Sampson
Project Value:
$188,874.00
Project Highlights:
The pump station provides an interconnection with the C.O.M.M. Water System to supply clean water to Hyannis during water emergencies.
Barnstable Emergency Pump Station - Barnstable, MA
This project constructed a temporary portable pump station in a Conex box that is fitted with water treatment equipment including pumps, valves, piping, and chemical treatment, all of the essential components of a permanent pump station. The temporary pump station is located on Phinney's Lane in Barnstable, MA, and serves as an interconnect to the C.O.M.M. (Centerville-Osterville-Marstons Mills) Water System to supply clean drinking water to the Hyannis Water System during water emergencies.





