Experience
Project Info:
Owner:
National Parks Service
Technologies/Materials:
Skid mounted Sand Slurry Pumps
Engineer:
Methuen Construction Company
Project Value:
$1.3 Million
Project Highlights:
The control of the system is manually initiated via monitoring and shut off controls from a programmable logic controller (PLC) and human machine interface (HMI).
Owner:
National Parks Service
Technologies/Materials:
Skid mounted Sand Slurry Pumps
Engineer:
Methuen Construction Company
Project Value:
$1.3 Million
Project Highlights:
The control of the system is manually initiated via monitoring and shut off controls from a programmable logic controller (PLC) and human machine interface (HMI).
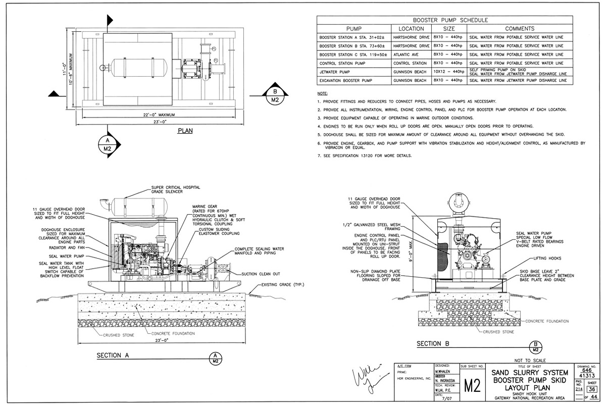
Sandy Hook Beach Erosion Control System - Sandy Hook, NJ
This project involved the engineering, design, fabrication, assembly and commissioning of five skid-mounted sand slurry pumps and one jet water booster pump as part of the beach erosion control system at the National Park in Sandy Hook, NJ. Each sand slurry pump has a design flow rate of 3500 gallons per minute capable of pumping sand slurry with a specific gravity of 1.26. The special application pumps were designed for highly abrasive sand slurries. Five pumps are driven by a 440 horse power diesel engine CAT C15 and one pump with a 325 horse power diesel CAT C11 engine that is coupled to the pump with a marine duty twin disc transmission.






